文章在分析汽車發動機螺旋傘齒輪設計理論的基礎上,結合實際的閉式模鍛工藝要求,選用復動閉式模具成型方案,
根據45鋼金屬力學性能和熱作模具鋼(4Cr5MoSiV1)材料性能,提出熱鍛模具預熱(溫度250℃)、動模壓鍛速度(70mm/s)和摩擦系數(0.3)等工況參數,
并通過設計復動模具結構(浮動模芯、齒模內/外圈)來增加流動性并提高型制精度、結合使用壓力墊板減輕壓應力和灰鐵模座降低模具制造成本、應用復動頂出結構來解決鍛件卡模問題、
采用組合式凹模和彈簧復位以解決飛邊問題來實現螺旋傘齒輪制造,為其高生產率、高鍛件表面品質的制造提供了可靠設計理論和制造依據。
近幾十年來,中國汽車行業取得了飛躍式的發展,“一帶一路”政策的實施和新能源汽車的普及,使得我國汽車產業的發展更加強勁,未來幾十年, 將會迎來一個更加繁榮昌盛的時代。
盡管一二線城 市的汽車擁有量極為可觀,但三四線城市以及農村地區仍然存在巨大的發展潛力。
汽車行業的迅猛增長也促進了汽車零部件制造商的迅猛崛起。隨著汽 車發動機的重要性越來越高,螺旋傘齒輪作為關鍵零件的需求量不斷增加,質量也日益提高。
本設計主要設計螺旋傘齒輪復動閉式模具,以閉式模鍛的方法設計汽車發動機螺旋傘齒輪。
在設計過程中, 仔細研究齒輪坯的幾何形狀和承載能力,以最大限度地提升其綜合性能。
本鍛造模具設計的發動機螺旋傘齒輪,零件材料用的是45 鋼,為碳素結構鋼,具有較好的塑性和沖擊韌性,在常溫以及不同的溫度下具有較好的塑性,因此在對螺旋傘齒輪的鍛造成型進行模具設計前,需要對材料組成成分進行了解。
模具材料采用熱作模具鋼(4Cr5MoSiV1)的參數為:碳0.42%~ 0.50%;模具初始硬度55HRC;模具預熱溫度250℃; 動模運動速度70mm/s;剪切摩擦;摩擦系數0.3。
力學性能:屈服強度大于355MPa。在鍛造高溫金屬時,模具預熱溫度在 200~300℃,模具預熱可以減少因溫度差異引起的熱應力,避免模具因組織應力不均勻,導致鍛件出現裂紋或變形。
同時預熱能夠顯著降低金屬在鍛造過程中的黏滯性,從而改善其流動性,避免金屬表面過早冷卻和凝固,保持金屬的流動性和塑性。
預熱還可以改善模具材料的組織結構,通過減少馬氏體相變帶來的體積變化,以降低熱應力。
在實際應用中,通過精確控制預熱溫度,可以有效延長模具的使用壽命,減少因熱應力導致的裂紋和斷裂現象。
螺旋傘齒輪零件在鍛造過程中需要依靠模具的閉合來進行成型,從而達到預定的形狀和尺寸。
一般而言,模鍛是指在外力作用下,當坯料的溫度達到金屬材料變形范圍內,使得材料產生塑性變形并充滿鍛模型腔的成型方法。
因此根據模具結構的類 型主要分為開式模鍛和閉式模鍛兩種。
一般而言,在鍛造過程中,由于模具型面受到材料的擠壓和剪切,導致部件之間發生摩擦磨損,從而使零件的初始品質無法達到設計要求。
因此,在確定其尺寸時,應當綜合考慮材料的抗拉強度、表面沖擊韌性以及耐磨性,上下模加工過程中雖然公差滿足實際要求,
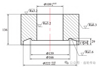
但由于裝配和調試后期尺寸公差發生變化,導致上模型面與下模的平面發生一定程度的傾斜或板料與上下模的間隙不均勻。上??煞譃檎w模具和組合模具,本次設計的模具采用的是組合模具,由浮動模芯、齒模、齒模內圈和齒模外圈組成,其形狀如圖1所示。

圖1 齒模結構圖
為了滿足使用要求,壓 力墊板必須具備良好的強度和剛度,通常使用45鋼制作,經過淬火處理,但是,當承受的壓力超出正常范圍時,也可以使用合金鋼來增加它的承載能力。如圖2所示。

圖2 上模墊板
下模座一般用于安裝模具零件,如導柱、導套, 連接上下模固定板等零件,通常采用灰鑄鐵制造。
本設計的螺旋傘齒輪零件的鍛造模具尺寸不是很大,為了減少制造成本,同時符合結構設計,查閱模具結構設計手冊后選擇標準模架。如圖3所示。

圖3 下模座
完成擠壓之后,由于彈性變形,擠壓件可能會被緊固在凸模上,也可能會被卡在凹模的內部,因此,必須采取措施解決這個問題。
一種方法是通過卸料裝置將擠壓件從凸模中卸下,另一種方法是通過頂出裝置將其從凹模的內部釋放。
當擠壓成型工件因貼模力作用滯留在凹模型腔時,必須借助專用頂出裝置實現脫模。該頂出系統通常集成在壓力機底座部位,其工作機理可分為兩種典型配置方案。
1) 沒有配備專門頂出機構的壓力機,其模具需要自行設計頂出機構。
頂出機構采用上模安裝的反向拉桿機構配合動作,頂出機構利用上模合模后沖程結束回退時反拉桿帶動總成動作,利用頂桿裝置的傳遞,進而由頂出桿頂出。
這種機械聯動機構需要根據各機構運動進行行程配合計算,使頂出時間能與模具開合動作相配合。
2) 有標準的頂出系統裝置的壓力機。
在模具設計過程中,模具的頂出系統可以只設計和壓力機頂出系統行程配合的頂桿,使機械接口能夠很好地實現標準化的對接,可提高模具與機械的匹配性,也能節約模具的研制成本,是目前模具設計的一種趨勢。
本設計的模具沒有專用的頂出機構,采用的是設計的頂出裝置。通過頂桿和頂板的運動把零件從模具上取下來。
螺旋傘齒輪零件模具的頂出桿的直徑與模具配合的公差采用H7/g6。
當上模座、下模座、頂桿、墊板、定位圈和頂料桿等工作部件設計完成后,將螺旋傘齒輪零件鍛 造模具進行裝配。
為確保裝配質量,需要精心挑選合適的裝配基準件。這些基準件包括上模、下模和固定板,它們與零件的加工密切相關。
接著,需要安裝其他組成部分。圖4為模具的裝配圖。

圖4 模具裝配圖
模具是一種復雜的制造設備,它包括齒輪模、凹槽模、浮動模、固定模、墊片和砧板。
為了降低更換和維護模具的費用,選擇了組合凹模的方式來制造齒輪和浮動凹模。通過使用浮動凹模,能夠更好地利用模膛和坯料之間的摩擦,從而提高金屬的流動性并減少成型難度。
這種方法使得坯料能夠完全固定在模膛內,避免出現飛邊現象。
在上下模合模準備過程,浮動模芯14在彈簧7的作用下被先壓到底部位置,組合凹模在彈簧1的作用下向上頂升到預定位置的上限,
此時,將已經預熱到工藝溫度的環形坯料放入組合凹模型腔內,再經過定位墊塊3實現徑向定位。
上模下移過程中, 組合凹模和組合齒模先行導向配合,并使浮動模芯14和固定模芯2實現軸向對合,從而共同構成閉合的鍛造型腔;
上模繼續下行,彈簧1、彈簧7被壓縮,毛坯在封閉的模膛中成型;壓力機回程,上模上行,組合凹模和浮動模芯14在彈簧作用下恢復到初始位置。
本研究研發了一套創新型間接頂出裝置以優化鍛件脫模工藝。該裝置采用模塊化設計原理,在下模座下方配置了可移動模塊作為動力傳遞載體。
當頂出行程達到預設閾值時,可移動模塊受斜面楔塊驅動實現徑向位移,從而解除對頂桿20的支撐約束形成懸臂結構。
脫模周期完成后,活動模塊在重力作用下自動復位至初始工位,同時通過拉簧預緊力維持模塊閉合狀態,為后續坯料裝夾提供可靠定位基準。
值得注意的是,頂桿20下行階段設置的彈性復位機構可確?;顒幽K的精確閉合定位。
通過對模具加熱及彈簧復位結構的設計保證冷熱應力和卡模狀況。復合凹模的使用可有效防止飛邊的出現,提升汽車發動機螺旋傘齒輪成型的金屬流線及質量。
選擇模架及采用灰鑄鐵下模座可進一步控制模鍛模具的成本,整體結構合理,在保證結構穩定性的前提下,簡化結構。
在模鍛模具的組裝中采用浮動模芯的頂出結構,保證組合模在頂出及復位方面的合理性及易操作性。
為汽車發動機關鍵部件的精密模鍛設計提供創新方法,具有一定工程適用價值。
參考文獻:略
作者簡介:王顏霞,碩士,講師,研究方向為控制工程;
根據45鋼金屬力學性能和熱作模具鋼(4Cr5MoSiV1)材料性能,提出熱鍛模具預熱(溫度250℃)、動模壓鍛速度(70mm/s)和摩擦系數(0.3)等工況參數,
并通過設計復動模具結構(浮動模芯、齒模內/外圈)來增加流動性并提高型制精度、結合使用壓力墊板減輕壓應力和灰鐵模座降低模具制造成本、應用復動頂出結構來解決鍛件卡模問題、
采用組合式凹模和彈簧復位以解決飛邊問題來實現螺旋傘齒輪制造,為其高生產率、高鍛件表面品質的制造提供了可靠設計理論和制造依據。
近幾十年來,中國汽車行業取得了飛躍式的發展,“一帶一路”政策的實施和新能源汽車的普及,使得我國汽車產業的發展更加強勁,未來幾十年, 將會迎來一個更加繁榮昌盛的時代。
盡管一二線城 市的汽車擁有量極為可觀,但三四線城市以及農村地區仍然存在巨大的發展潛力。
汽車行業的迅猛增長也促進了汽車零部件制造商的迅猛崛起。隨著汽 車發動機的重要性越來越高,螺旋傘齒輪作為關鍵零件的需求量不斷增加,質量也日益提高。
本設計主要設計螺旋傘齒輪復動閉式模具,以閉式模鍛的方法設計汽車發動機螺旋傘齒輪。
在設計過程中, 仔細研究齒輪坯的幾何形狀和承載能力,以最大限度地提升其綜合性能。
工作模具設計
本鍛造模具設計的發動機螺旋傘齒輪,零件材料用的是45 鋼,為碳素結構鋼,具有較好的塑性和沖擊韌性,在常溫以及不同的溫度下具有較好的塑性,因此在對螺旋傘齒輪的鍛造成型進行模具設計前,需要對材料組成成分進行了解。
模具材料采用熱作模具鋼(4Cr5MoSiV1)的參數為:碳0.42%~ 0.50%;模具初始硬度55HRC;模具預熱溫度250℃; 動模運動速度70mm/s;剪切摩擦;摩擦系數0.3。
力學性能:屈服強度大于355MPa。在鍛造高溫金屬時,模具預熱溫度在 200~300℃,模具預熱可以減少因溫度差異引起的熱應力,避免模具因組織應力不均勻,導致鍛件出現裂紋或變形。
同時預熱能夠顯著降低金屬在鍛造過程中的黏滯性,從而改善其流動性,避免金屬表面過早冷卻和凝固,保持金屬的流動性和塑性。
預熱還可以改善模具材料的組織結構,通過減少馬氏體相變帶來的體積變化,以降低熱應力。
在實際應用中,通過精確控制預熱溫度,可以有效延長模具的使用壽命,減少因熱應力導致的裂紋和斷裂現象。
模具結構設計
螺旋傘齒輪零件在鍛造過程中需要依靠模具的閉合來進行成型,從而達到預定的形狀和尺寸。
一般而言,模鍛是指在外力作用下,當坯料的溫度達到金屬材料變形范圍內,使得材料產生塑性變形并充滿鍛模型腔的成型方法。
因此根據模具結構的類 型主要分為開式模鍛和閉式模鍛兩種。
一般而言,在鍛造過程中,由于模具型面受到材料的擠壓和剪切,導致部件之間發生摩擦磨損,從而使零件的初始品質無法達到設計要求。
因此,在確定其尺寸時,應當綜合考慮材料的抗拉強度、表面沖擊韌性以及耐磨性,上下模加工過程中雖然公差滿足實際要求,
但由于裝配和調試后期尺寸公差發生變化,導致上模型面與下模的平面發生一定程度的傾斜或板料與上下模的間隙不均勻。上??煞譃檎w模具和組合模具,本次設計的模具采用的是組合模具,由浮動模芯、齒模、齒模內圈和齒模外圈組成,其形狀如圖1所示。

圖1 齒模結構圖
壓力墊板的設計
在擠壓過程中,由于模具型腔內的單位壓力非常大,若是將上模和下模的軸向壓應力直接施加于上下模板,就會導致模板的壓塌,為了減輕這種壓應力,需要在這兩個模板之間安裝一層淬硬的壓力墊板,也就是所謂的墊板。為了滿足使用要求,壓 力墊板必須具備良好的強度和剛度,通常使用45鋼制作,經過淬火處理,但是,當承受的壓力超出正常范圍時,也可以使用合金鋼來增加它的承載能力。如圖2所示。

圖2 上模墊板
模座的設計
下模座一般用于安裝模具零件,如導柱、導套, 連接上下模固定板等零件,通常采用灰鑄鐵制造。
本設計的螺旋傘齒輪零件的鍛造模具尺寸不是很大,為了減少制造成本,同時符合結構設計,查閱模具結構設計手冊后選擇標準模架。如圖3所示。

圖3 下模座
復動頂出機構設計
完成擠壓之后,由于彈性變形,擠壓件可能會被緊固在凸模上,也可能會被卡在凹模的內部,因此,必須采取措施解決這個問題。
一種方法是通過卸料裝置將擠壓件從凸模中卸下,另一種方法是通過頂出裝置將其從凹模的內部釋放。
當擠壓成型工件因貼模力作用滯留在凹模型腔時,必須借助專用頂出裝置實現脫模。該頂出系統通常集成在壓力機底座部位,其工作機理可分為兩種典型配置方案。
1) 沒有配備專門頂出機構的壓力機,其模具需要自行設計頂出機構。
頂出機構采用上模安裝的反向拉桿機構配合動作,頂出機構利用上模合模后沖程結束回退時反拉桿帶動總成動作,利用頂桿裝置的傳遞,進而由頂出桿頂出。
這種機械聯動機構需要根據各機構運動進行行程配合計算,使頂出時間能與模具開合動作相配合。
2) 有標準的頂出系統裝置的壓力機。
在模具設計過程中,模具的頂出系統可以只設計和壓力機頂出系統行程配合的頂桿,使機械接口能夠很好地實現標準化的對接,可提高模具與機械的匹配性,也能節約模具的研制成本,是目前模具設計的一種趨勢。
本設計的模具沒有專用的頂出機構,采用的是設計的頂出裝置。通過頂桿和頂板的運動把零件從模具上取下來。
螺旋傘齒輪零件模具的頂出桿的直徑與模具配合的公差采用H7/g6。
模具的裝配
當上模座、下模座、頂桿、墊板、定位圈和頂料桿等工作部件設計完成后,將螺旋傘齒輪零件鍛 造模具進行裝配。
為確保裝配質量,需要精心挑選合適的裝配基準件。這些基準件包括上模、下模和固定板,它們與零件的加工密切相關。
接著,需要安裝其他組成部分。圖4為模具的裝配圖。

圖4 模具裝配圖
模具是一種復雜的制造設備,它包括齒輪模、凹槽模、浮動模、固定模、墊片和砧板。
為了降低更換和維護模具的費用,選擇了組合凹模的方式來制造齒輪和浮動凹模。通過使用浮動凹模,能夠更好地利用模膛和坯料之間的摩擦,從而提高金屬的流動性并減少成型難度。
這種方法使得坯料能夠完全固定在模膛內,避免出現飛邊現象。
在上下模合模準備過程,浮動模芯14在彈簧7的作用下被先壓到底部位置,組合凹模在彈簧1的作用下向上頂升到預定位置的上限,
此時,將已經預熱到工藝溫度的環形坯料放入組合凹模型腔內,再經過定位墊塊3實現徑向定位。
上模下移過程中, 組合凹模和組合齒模先行導向配合,并使浮動模芯14和固定模芯2實現軸向對合,從而共同構成閉合的鍛造型腔;
上模繼續下行,彈簧1、彈簧7被壓縮,毛坯在封閉的模膛中成型;壓力機回程,上模上行,組合凹模和浮動模芯14在彈簧作用下恢復到初始位置。
本研究研發了一套創新型間接頂出裝置以優化鍛件脫模工藝。該裝置采用模塊化設計原理,在下模座下方配置了可移動模塊作為動力傳遞載體。
當頂出行程達到預設閾值時,可移動模塊受斜面楔塊驅動實現徑向位移,從而解除對頂桿20的支撐約束形成懸臂結構。
脫模周期完成后,活動模塊在重力作用下自動復位至初始工位,同時通過拉簧預緊力維持模塊閉合狀態,為后續坯料裝夾提供可靠定位基準。
值得注意的是,頂桿20下行階段設置的彈性復位機構可確?;顒幽K的精確閉合定位。
結 論
文章針對汽車發動機螺旋傘齒輪采用閉式模鍛工藝進行閉式模鍛模及其設計,并針對4Cr5MoSiV1與45鋼兩種鍛模材料對鍛模結構進行了優化設計,結合組合模及壓力墊板結構提升汽車發動機螺旋傘齒輪成形的生產效率及質量。通過對模具加熱及彈簧復位結構的設計保證冷熱應力和卡模狀況。復合凹模的使用可有效防止飛邊的出現,提升汽車發動機螺旋傘齒輪成型的金屬流線及質量。
選擇模架及采用灰鑄鐵下模座可進一步控制模鍛模具的成本,整體結構合理,在保證結構穩定性的前提下,簡化結構。
在模鍛模具的組裝中采用浮動模芯的頂出結構,保證組合模在頂出及復位方面的合理性及易操作性。
為汽車發動機關鍵部件的精密模鍛設計提供創新方法,具有一定工程適用價值。
參考文獻:略
作者簡介:王顏霞,碩士,講師,研究方向為控制工程;
